zum Inhalt

KinderHOFgarten

Katharina Doblinger
Semesterarbeit 2008/2009

Katharina Doblinger setzt mit Ihrem KinderHOFgarten bewusst einen Punkt und Abschluss in die undifferenzierte Umgebung der Solarcity. Durch die gewählte Hofstruktur entsteht eine dörfliche, schützende Struktur inmitten der Peripherie, die intime und ungeheuer reizvolle Freibereiche und Innenraumbezüge entstehen lässt.

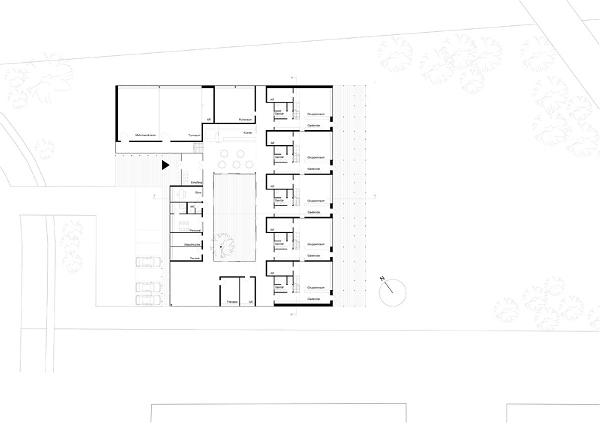
Der Hof- das „Herz“ des Kindergartens
Durch den vorgelagerten Mehrzwecksaal wird man „geborgen“ ins Innere des Kindergartens geführt. Rund um den zentral gelegenen Hof, der den Kindern ein Gefühl von Schutz und Intimität vermittelt, gruppieren sich sämtliche Funktionen. Vom  „Dorfplatz“ ausgehend entsteht eine Abfolge von immer intimer werdender Raumfolgen  - von halböffentlichen Spiel-und Essbereichen bis zu den Gruppenräumen. Diese sind zweigeschossig und bieten den Kindern mit Ihren „Erkern“ zum Hof hin spannende Raum- und Blickperspektiven.
Von den Gruppenräumen aus gelangt man über die weite, gedeckte Terrasse in den großen anschließenden Garten, der das differenzierte  Freiraumangebot komplettiert.

Die „grüne Fassade“
Die introvertierte, schützende Struktur dieses Kindergartens wird durch Massivbauweise zusätzlich betont. Als Kontrapunkt und eine Art „Filter“ sind den Putzfassaden begrünte Rankgerüste vorgesetzt. Diese verwendet Katharina Doblinger als Sonnenschutzelemente, die gleichzeitig  ein raumbildendes, subtiles Gestalten im Freiraum ermöglichen.


Die Arbeit enstand im Wintersemester 2008/2009 und ist ein Ergebnis aus dem Semesterprojekt KIGA – Ein Kindergarten für Linz.