zum Inhalt

bioloft

Johannes Wolfsteiner
prämierte Semesterarbeit 2008/2009

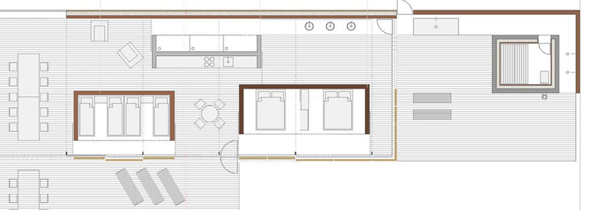
Johannes Wolfsteiner trägt mit dieser Konzeption der Einlagerung von Einzelhütten als Raumzellen in den Innenraum zum sparsamen Umgang mit der Ressource Land bei. Das Bauen konzentriert sich in seiner Arbeit auf zwei Orte. Den alten Hof und das neue Zentrum im Norden des Grundstückes.

bio und loft
Das Gästehaushaus ist nicht nur ‚bio‘ im sparsamen Landverbrauch. Auch die Wahl der Materialien (Holz, Lehmziegel, Stampflehm und Beton) und ihr der Einsatz als wirksame Speichermasse im Loftinnenraum sind ‚bio‘. Und nicht zuletzt kann das Loft als Raumidee die Möglichkeit für mehrfach abgestufte Formen des sozialen Umgangs unter den Gästen sorgen. Sich selbst Ausstellen
Die Forderung der Auftraggeber nach einer für sie programmatischen Bauweise im Sinne eine permanenten ‚Leistungsschau‘ für Bauen mit alternativen Technologien und Material (z.B. Bauernstoffe) kann in diesem Projekt nahezu 1:1 umgesetzt werden ohne dabei in ein Disneylandcharakter zu verfallen.

Die Semesterarbeit entstand im Rahmen des Kooperationsprojektes Futura Ekogård mit dem gleichnamigen schwedischen Bauträger und wurde von einer Architekturjury als Ankauf prämiert.