zum Inhalt

KIGA Chamäleon

Anita Foune
Semesterarbeit 2008/2009

Anita Foune gelingt mit diesem Projekt eine große Herausforderung – die Schaffung eines Kindergartens, der trotz seiner Programmatik hinsichtlich Ökonomie, Funktion und Nachhaltigkeit von höchstem ästhetischem Feingefühl zeugt.

Der klare Baukörper
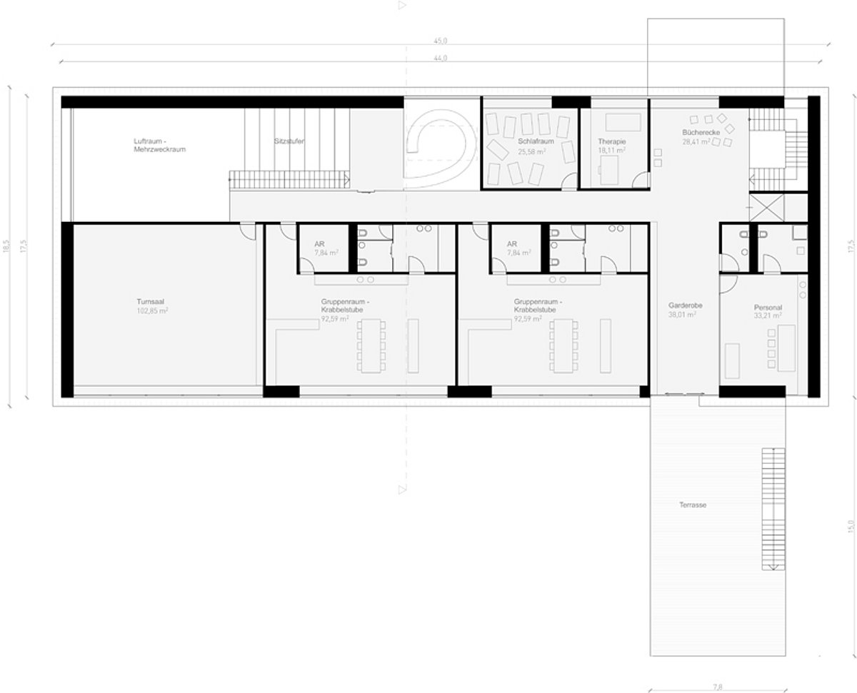
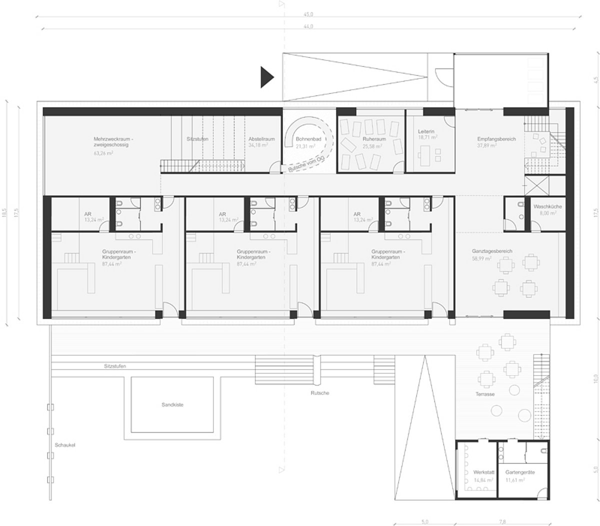
Ein reduzierter, klarer Baukörper bildet, 90 Grad gedreht, einen Kontrapunkt zu der riegelförmigen Bebauung der Solarcity. Er wird -ökologisch nachhaltig-als Lehmbau ausgeführt und beinhaltet auf zwei Geschossen alle geforderten Funktionen, wie Gruppenräume, Mehrzwecksaal etc. Lediglich die Werkstätte und der Raum für Gartengeräte werden ausgelagert und über eine Terrasse mit der Großform verbunden. Die entstandene Kompaktheit bietet beste Voraussetzungen für energie- und kostenökonomisches Bauen und Erlangung des Passivhausstandards.Trotz dieser Tatsachen gelingt es Anita Founé in dieser simplen Box ein differenziertes und  höchst attraktives Innenleben auszubilden. Durch geschossübergreifende Elemente wie großzügige Sitzstufen und Galerien entstehen innerhalb des Körpers spannende Durch- und Einblicke.

Die „bewegliche“ Außenhülle
Eine flexible Lamellenfassade, die die gewünschte Verschattung der dahinter liegenden Räume ermöglicht, versetzt den statischen Baukörper scheinbar in Bewegung, gibt ihm Tiefe und zugleich eine subtile Leichtigkeit. Durch Veränderung der Lamellenstellung und deren unterschiedliche Materialien entsteht so ein reizvoller Effekt von Licht und Schatten, der die ruhige Form des Kindergartens ständig neu bespielt.

Die Arbeit enstand im Wintersemester 2008/2009 und ist ein Ergebnis aus dem Semesterprojekt KIGA – Ein Kindergarten für Linz.