zum Inhalt

vall

Christian Wolf
prämierte Semesterarbeit 2008/2009

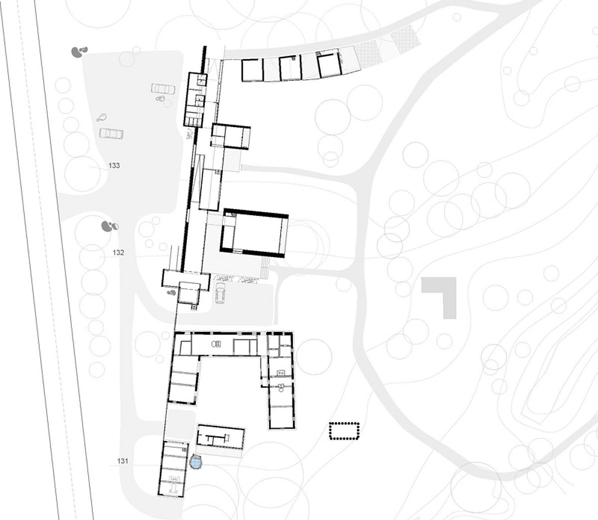
Aus der unmittelbaren architektonischen Reaktion auf die schnurgerade Überlandstraße entwickelte Christian Wolf eine Strategie der Raumanordnung, die über die funktionelle Erfordernisse hinaus noch eigene Mehrwerte bietet.
Das Siegerprojekt der Semesterarbeiten im Herbst 2009 für ein Seminar- und Ausbildungszentrum bietet den Auftraggebern Karin Malmgren und Roland Birgersson vom Bauträger Futura Ekogård nicht nur ein reibungsloses Funktionieren im Betrieb. Auch dem Wunsch nach verschiedenen Bauweisen im Sinne einer 1:1-Demonstration der gebauten Architekturen für einen nachhaltigen und zukunftweisenden Umgang mit Ressourcen wird mit einer konzeptionellen Strategie entsprochen.

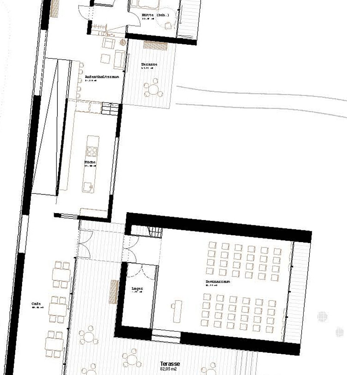
Eko-vall
Das sprichwörtlich Rückgrat ist eine Wand/Mauer (schwedisch: vall), die nebst ihrer Lärmschutzfunktion vor allem gestalterischer und organisatorischer Ausgangspunkt für die Entwicklung einer Lösung ist. Pavillonartig und gleichsam tänzerisch sind die einzelnen Funktionen (Info, Cafe, Saal, …) als gebaute ‚Ausstellungsstücke‘ locker und linear aneinandergereiht.

Flexibilität als Nachhaltigkeit
Damit erreicht Christian Wolf eine inhaltliche Nachhaltig im Sinne der Planung, weil das Projekt bei einer strukturell bedingten ‚Gestaltsicherheit‘ sowohl in seinen Funkionen wie auch in den Bauweisen flexibel bzw. offen bleibt. Darüberhinaus ist auch ein eventuell erforderliches Bauen in Ettappen möglich.

Modernes Bauen am ‚alten‘ Ort
Die ‚typologische Moderne‘ des Projekts steht dabei durch die Maßstäblichkeit der Baumassen und die Materialwahl (Stein, Lehm, Holz, Stroh) mit dem bestehenden schwedischen Bauernhof in einem spannungsgeladenem Dialog. So können das ‚Heute der Architektur‘ und die ‚Erde des Bestands‘ im Dialog zueinander jeweils für sich bestehen.

Die Semesterarbeit entstand im Rahmen des Kooperationsprojektes Futura Ekogård mit dem gleichnamigen schwedischen Bauträger und wurde von einer Architekturjury als 1. Preis prämiert.