zum Inhalt

Biomall

Team 6 | Ulrike Witzmann, Anton Oster und Karl Niedermayr
Abschlussarbeit 2008 / 2009
überholz - Masterlehrgang für Holzbaukultur

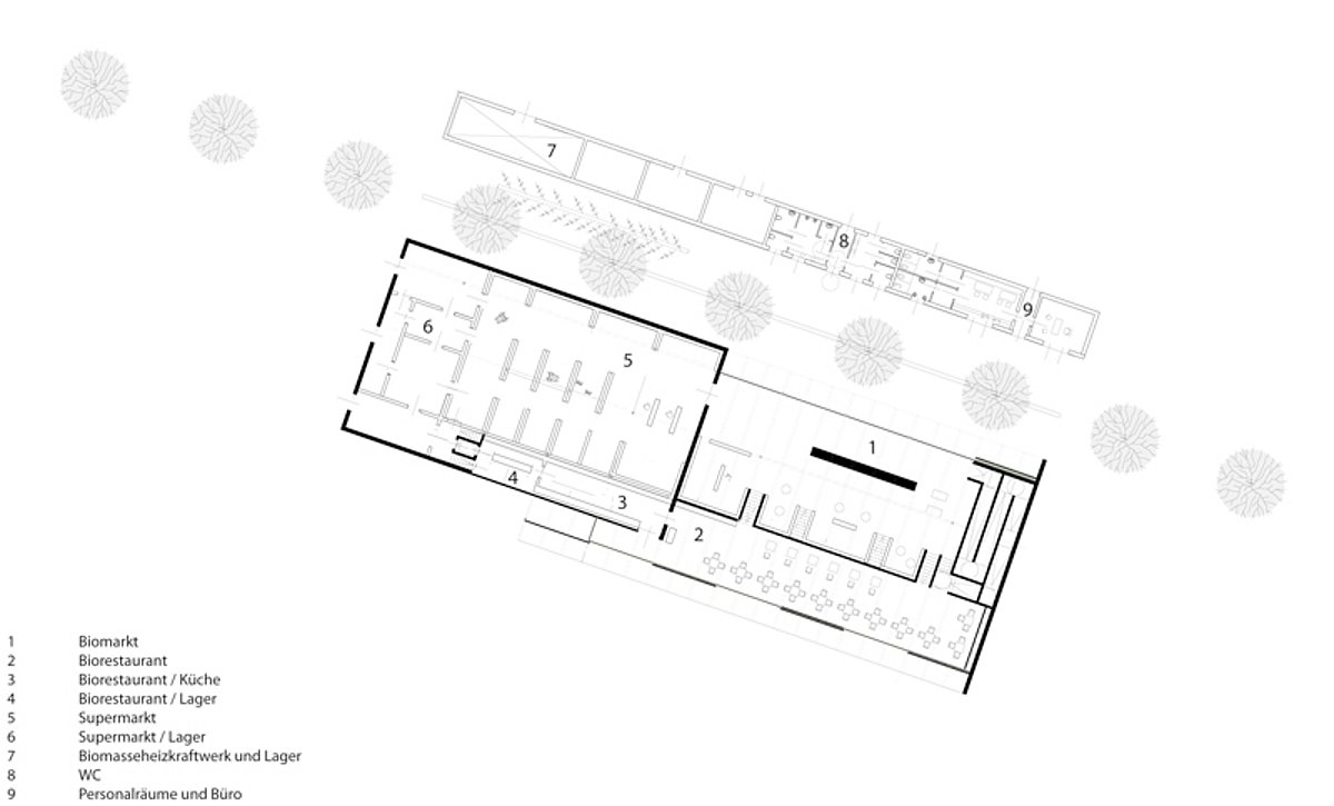
„Das Auge isst mit“, diesem Motto folgend wird bei diesem Projekt auch dem Kauferlebnis Aufmerksamkeit gezollt. Im Zusammenspiel mehrerer Baukörpern entsteht im Innen- wie im Außenbereich ein anspruchsvolles Raum- und Funktionsprogramm. Die leichte, lichte Markthalle mit Verteilerfunktion, ein um ein Halb-geschoss versenkter Lehmkeller, darüber liegend die Restauration mit freiem, leicht erhöhten Blick auf die Felder. Jeder dieser Bereiche lädt mit seinen sinnvollen und sinnlichen Qualitäten die KundInnen zum Kosten und Verweilen ein.
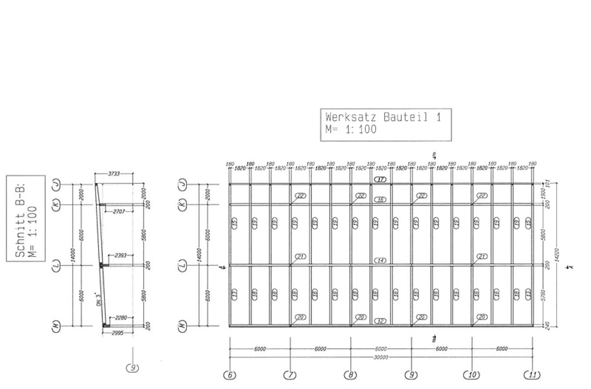
Vier Hauptträger durchziehen die drei zusammenhängenden Kubaturen und tragen durch die unterschiedlichen Höhenlagen zum Raumerlebnis bei.
Die Aussteifung der Wände erfolgt vor allem über das geschlossene Volumen des Supermarktes. Und auch die schubsteifen Dachelemente decken nur den Supermarkt und das Restaurant. Dadurch wird die Markthalle frei gespielt, kann große Glasfassaden und eine transluzente Dachhaut erhalten.
Alle Wand- und Dachbauteile sind elementiert. Die transluzente Dachhaut im Bereich der Markthalle ist ein Folienkissendach mit integrierter Beschattung.

Thema der Arbeit war der Entwurf eines Biohofmarktes in Neuhofen bei Ried.