zum Inhalt

Mülikoasa

Wolfgang Mayer
Diplomarbeit  2008
Architektur

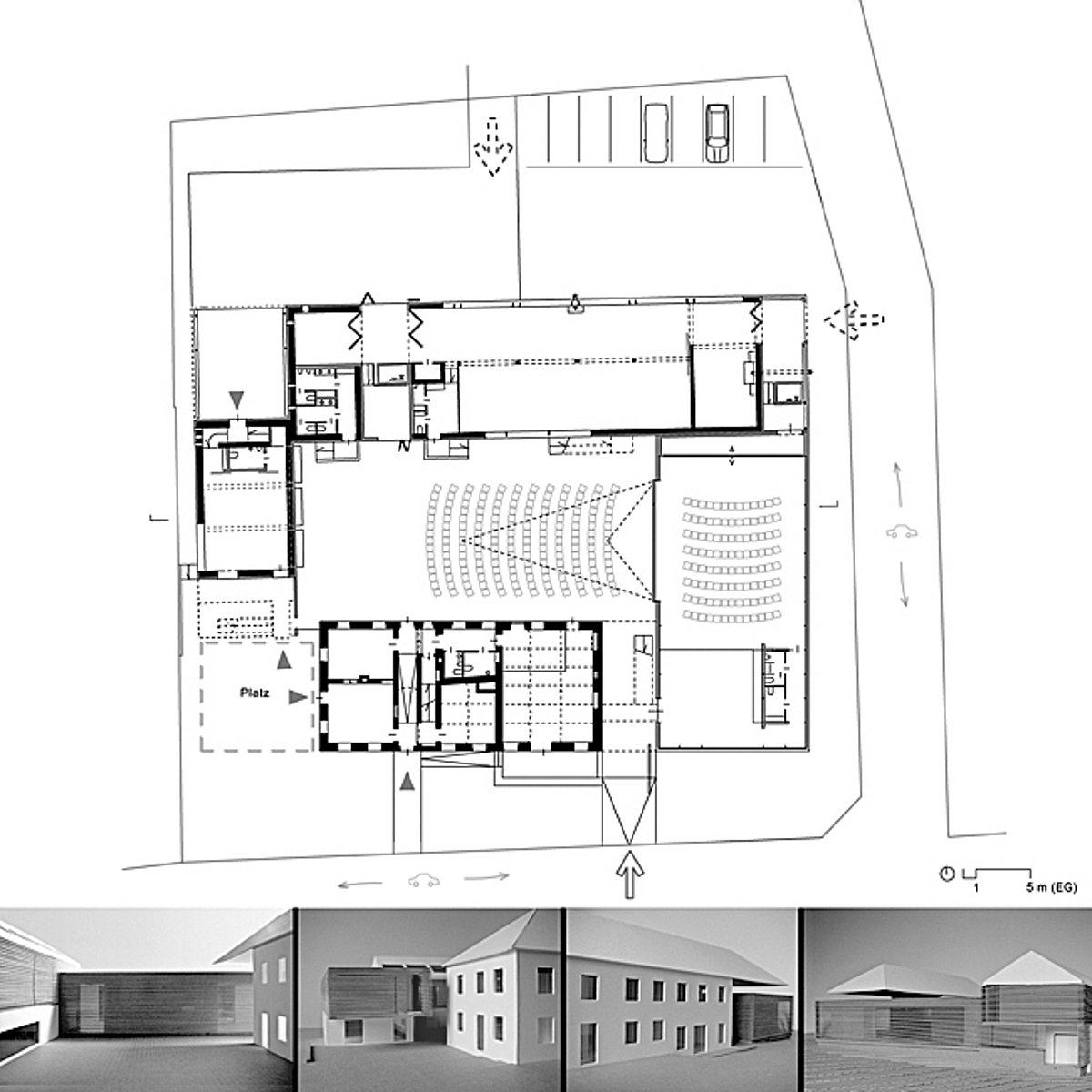
Mülikoasa-Hof ist seit Jahren ein akzeptiertes Forum für kulturelles Schaffen unterschiedlichster Richtungen im Zentrum von Haag am Hausruck. Im Zuge einer etappenweisen Sanierung werden Nutzungseinschränkungen des Bestandes beseitigt und die Strukturen an die Erfordernisse bestehender wie zukünftiger Nutzungen angepasst. Als Reaktion auf einen langfristig angesetzten Realisierungszeitraum und ein breites Nutzungsspektrum sind robuste, flexible Strukturen und Raumgefüge unterschiedlicher öffentlicher Orientierung notwendig.
Durch Entkernen und geringfügige Eingriffe wird der Großteil des Bestandes optimiert und um Neu- und Zubauten ergänzt. Kennzeichnend für die Neubauten sind ihre Erschließung durch Außentreppen und die Konzentration der Infrastruktur in Boxen. Beide Maßnahmen zusammen schaffen neutrale, wandlungsfähige Strukturen – unabhängige Erschließung und freie, koppelbare Flächen. Sie spielen so den Raum für eine Unzahl an unterschiedlichen Nutzungen frei.
Durch die Erweiterungen nach Norden und Osten schaffen die neuen Bauteile eine klare Struktur der Hofform – einspringender Vierkanter – und setzen sich in ihrer Materialität klar von der Putzstruktur des Bestandes ab. Ihre mehrschichtige Fassade mit einer äußeren, horizontalen Lamellenstruktur aus stehenden und liegenden Holzbrettern und Glaselementen schafft ein Wechselspiel von offen — geschlossen, von öffentlich — privat. Sie umschließt den Innenhof wie ein Band und gewährt punktuell Einblicke in Räume. Zugleich trägt sie die Nutzung öffentlich orientierter Bauteile nach außen.

Betreuung
O.Univ.-Prof. Mag. arch. Roland Gnaiger

Datum der Fertigstellung
April 2008